Casa Xavier

Rehabilitació integral d'habitatge unifamiliar entre mitgeres a Castellar de Vallès.

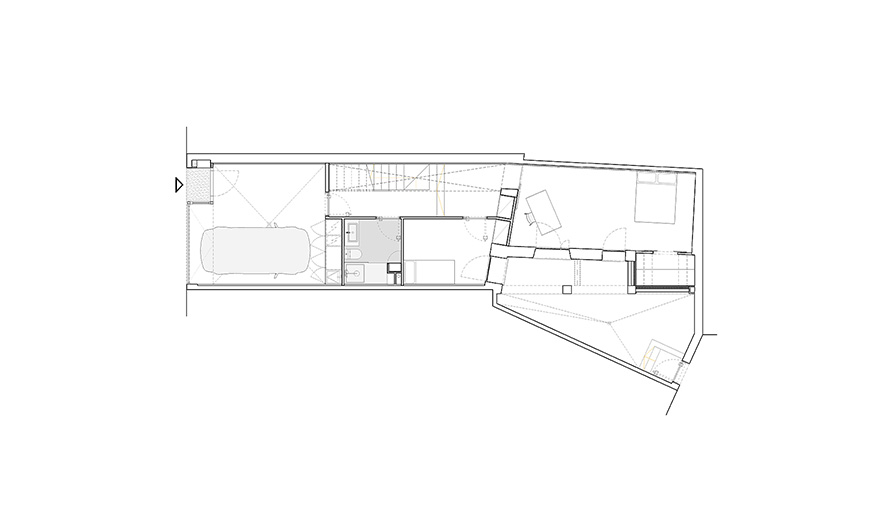
El projecte s'organitza en dues plantes. La planta baixa inclou l'accés a l'habitatge i la zona de dormitoris. La planta primera és una sala-cuina oberta a la terrassa posterior. És conserven les arcades i és descobreix la coberta.
Client:
Client Privat

Situació:
Aitona Lleida
Superfície:
150m2

Data de finalització:
En Construcció
Equip:
DAOarquitectes

Constructora:

Roymar
DAO Arquitectes

Segueix-nos